烘干房的设计图是工程师根据科学原理及客户的实际要求设计,该设计图主要是为了烘干房制作流程的规定,使烘干生产达到更合理的示意图,设计图不仅可以节约成本,从而用户降低投入费用,真正考虑到用户的才是优质的设备和服务,热泵作为一项新型,节能的新技术,选择热泵烘干将是企业的一个首 选方向。以下为大家展示:木材烘干房,辣椒烘干房,食品烘干房的设计图纸。
空气能热泵烘干房的特点:
1、安装方便:安装、拆迁方便,占地面积少,可装于室内、外。
2、高效节能:只需消耗少量的电能,太阳能烘干机就可以在太阳能中吸收大量的热量,耗电量仅为加热器的1/30-1/40,同燃煤、油、气烘干设备相比,可节省75-98%左右的运行费用,高温空气能热泵烘干面1度电等于4度电。
3、环保无污染,无任何燃烧物及排放物,是一种可持续发展的一环保型产品。
4、运行安全可靠:整个系统的运行无传统干燥器(燃油、燃气或电加热)中可能存在的易燃,易爆、中毒、短路等危险,是一种安全可靠的全封闭干燥系统。
5、使用寿命长,维护费用低,是在传统空调的技术基础上发展而来的的,节能环保性能稳定,可靠,使用寿命长,运行安全可靠,全自动免人工操作,智能化控制。



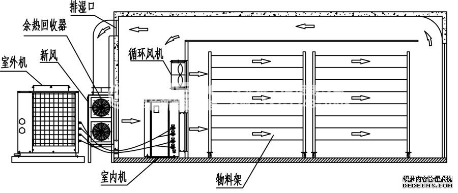
烟草烘干房设计图
6、舒适方便,自动化、智能化程度高,采用自动控温装置,24小时连续干燥作业。
7、适用范围广,不受气候影响,可广泛适用于高温热水,食品、农副产品、海产品,中药材,纸品木材,皮革化工医药、印刷、软包装,陶瓷等高温热水和烘干系统设备。
索取更多热泵烘干房设计图,烘干房定制可以联系我们公司的设计总监:13416847635(黄工)
联系电话
微信扫一扫